Расскажем, как сделать такой стеллаж.
Основу стеллажа составляют задняя стенка 1 и две стойки 2, выполненные из 18-мм мебельного щита.
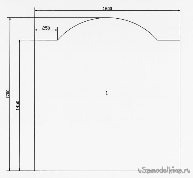
Задняя стенка представлена на чертеже.
Так как листа такой ширины найти тяжело, два листа шириной 800 мм предварительно состыкуем на шкантах Ø10х50 мм и клее ПВА (можно применить лист 10-15-мм фанеры, но вкручивать саморезы в торцы фанеры тяжеловато). Затем электролобзиком листу придаём форму, соответствующую чертежу.
Далее из мебельного 18-мм щита с использованием шкантов Ø10х30 мм собираем конструкцию, состоящую из полок 3 и стоек 4. (Отверстия под шканты сверлим со смещением так, чтобы не было их пересечения.) Снизу по центру крепим на саморезах дополнительную ножку 5, которая исключает провисание полок под тяжестью книг.
Затем данную сборку полок надо прикрепить к задней стенке с помощью шурупов Ø5х50 мм и прикрепляем боковые стойки.
Остановимся подробнее на дверках. Для изготовления рамок используется готовый профиль 40х20 мм с выбранным пазом 15х10 мм.
Детали рамки запиливаем на стусле (или с помощью торцовочной пилы) под углом 45º и собираем на шпонках с использованием клея ПВА. Для увеличения жёсткости с тыльной стороны крепим металлические рамные уголки, которые утапливаем заподлицо. Используемое 4-мм стекло вкладываем в паз и закрепляем штапиком. Заранее в стекле с помощью трубчатого алмазного сверла необходимого диаметра сверлим отверстие для установки ручки. (Сверлить необходимо на максимальных оборотах без нажима, избегая перекосов сверла; обязательно следует использовать воду, как охлаждающую жидкость.) Дверки навешиваем на двухшарнирные петли, которые позволяют им открываться на 90º.
По завершению сборки стеллаж зашкуриваем, обрабатываем морилкой необходимого цвета и покрываем лаком.
Используемые материалы приведены в таблице.








