Это узконаправленная мощная антенна для Wi-Fi и 3G, 4G, 5G, а также для работы в дециметровом диапазоне волн, которую можно применить и для приёма цифрового телевидения стандарта DVB-T2. Эту антенну ещё называют "пушкой", "ягой", и так далее. С предполагаемым усилением сигнала до 10-12 децибел. Для меня она больше ассоциируется с "Луноходом-1", 69 года прошлого столетия. Она легко поддаётся повторению из-за простой конструкции. Информации в интернете о подобных антеннах очень много. Также можно найти калькуляторы для точного расчёта размеров антенны, исходя из нужного вам диапазона волн. В этой статье я расскажу о своём опыте изготовления такой антенны. Сразу могу сказать, что антенна рабочая, но требует высокой точности в изготовлении и небольших наладок после сборки.
Для реализации этого проекта понадобятся следующие материалы и инструменты:
Материалы:
- медная пластина (алюминий, оцинковка) - 0,3mm (0,3-2);
- шпилька d = 6mm;
- гайки М6;
- шайбы разной толщины;
- коаксиальный кабель 50Ω - 1-12м;
- и другие расходники (припой, флюс, термоусадочная трубка, и.т.д.).
Инструменты:
- УШМ (болгарка)/(с регулятором оборотов) или ножовка по металлу;
- отрезной диск по металлу - 1мм/2мм;
- дрель или шуруповёрт;
- "балеринка" d = 37 - 92mm;
- ключи на 10, под гайки М6 x 2шт.
- штангенциркуль, рулетка;
- сверло d = 0,7 - 1/ 6,2mm;
- наждачная бумага;
- нож монтажный;
- металлическая линейка;
- маркер/фломастер;
- кусачки, плоскогубцы и другой инструмент.
В качестве основного материала для изготовления антенны я применил стеклотекстолитовую медную пластину. Она очень тонкая и её толщина несколько сотен микрон (0,3-0,5mm). Этот композитный материал очень жёсткий за счёт стекловолоконной прослойки.
Рекомендую использовать просто листовую медь. Медь является отличным проводником и хорошо паяется. За счёт таких замечательных качеств она легко поддаётся механической обработке. В качестве инструмента для отрезания круговых пластин использовал так называемую "балеринку" (круговое регулируемое сверло с резцами).
С её помощью можно очень точно отрезать необходимые нам детали. Отрегулировав по направляющей необходимый радиус диаметра круга, можно начать вырезать заготовки для будущей антенны. Как видно на фотографиях, разметку для центра круга можно и не делать. Центральная ось инструмента выступает в качестве керна.
Если у вас нет такого инструмента для вырезания кругов, можно воспользоваться обычными ножницами. Но перед этим надо будет сделать разметку деталей с помощью циркуля. В этой самодельной антенны большую роль играет точность, поэтому для её изготовления лучше использовать профессиональный инструмент!
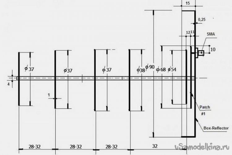
Режущее приспособление нужно установить на дрель и надежно зафиксировать патрон. Режущая кромка ножа должна быть хорошо заточено для достижения наиболее точного размера диаметра круга. Небольшое расхождение диаметра могут изменить параметры антенны. Поэтому очень аккуратно вырезаем заготовки, исходя из заданных размеров чертежа (7 дисков).
Перед тем как вырезать детали под медную пластину, я положил кусок ДВП. Во время работы с дрелью из-за того, что материал очень тонкий, я придерживал его небольшим куском ДСП. Мне было удобнее держать электродрель руками, но можно эту операцию проделать и на стационарном сверлильном станке. Во время работы нужно держать инструмент вертикально, установив на дрель максимальные обороты вращения.
После изготовления всех деталей нужно проверить их размеры и убедиться, что всё совпадает с чертежом. В случае несоответствия лучше вырезать другую деталь. Если на металлической части остались заусенцы, их можно убрать с помощью мелкозернистой наждачной бумаги.
Следующая операция: это разметка и сверление отверстий под центральную шпильку и кабель. Для этого нам понадобится первый диск рефлектор и второй диск - приёмник.
Сперва нужно разметить с помощью тонкого маркера центральную часть круга. Для того чтобы сориентироваться, я расположил меньший круг на больший и сделал разметку. Соответственно, на меньшем круге 69мм нужно сделать небольшое отверстие, примерно 0.7-1,5мм под центральную жилу кабеля.
Сделав крестообразную разметку, нужно разместить одно или два таких отверстия (3G требует соединение двух проводов), оставляя от края 10мм. Отверстия должны быть на уровне 90°относительно другого. Ту же операцию можно проделать и на большей пластине, но с другим размером отверстия.
Диаметр сверла нужно подобрать под размер кабеля, который вы будете использовать. Исходя из диаметра центральной шпильки, которая у меня составляет 6мм, я использовал то же сверло под остальные отверстия, соответственно, немного большим диаметром - 6,2 мм. Из-за того, что резьбовых шпилек на 4мм не нашлось, пришлось покупать диаметром на 6. Но чем тоньше будет центральная ось, тем лучше для антенны работающий в диапазоне Wi-Fi волн.
Закончив работу с кругами для нашей антенны, можно приступить к резке шпильки. Их можно найти в строительных магазинах. Они продаются по стандартной длине с разными диаметрами, начиная от 4 мм до 10, 12, и выше. Сперва нужно отмерить нужную длину шпильки и промаркировать её.
По чертежу рабочая длина составляет 151 мм, но я резал её с небольшим запасом в 20мм. Таким образом, общая длина составила 170 мм. Резку металла можно произвести с помощью болгарки или простой ножовки по металлу.
После этого, болгаркой, установив её на более низкие обороты, нужно зачистить торец шпильки. Туже, операцию можно проделать с помощью надфиля или наждачной бумаги. Закруглив немного резьбу в конце шпильки, мы облегчим последующие надевание гаек.

Подготовив необходимое количество гаек, можно приступить к сборке антенны. Сперва одеваем мелкие круги, директора на центральную ось шпильки. Первый круг устанавливается таким образом, чтобы гайка закручивалась заподлицо со шпилькой.
После этого с помощью металлической линейки нужно отмерить расстояние до следующего круга. Дистанция между ними должна строго соответствовать чертежу!
[center]

Расстояние от края равно: S=10mm. Это важный момент для того, чтобы антенна работала корректно. Поэтому важно придерживаться заданных размеров!
Использование резьбовой шпильки с гайками позволяет в дальнейшем регулировать расстояние между дисками антенны. Таким образом, это даёт возможность подстроить уже готовую антенну.
В то же время, такую сборку можно произвести с помощью других материалов. Например, латунного, медного штыря, к которому можно припаять элементы. Сборка конструкции производится не спеша, последовательно. Как видите, на фотографиях, даже ребёнок (мой сын) может справиться с этим! Последние два диска нужно оставить для следующего этапа изготовления антенны.
Теперь можно приступить к пайке с последующим соединением кабеля. Прежде чем соединить кабель, отверстия на рефлекторе нужно залудить с помощью паяльника и обычного припоя.
Туже операцию нужно произвести и на второй пластине — вибраторе.
Следующим шагом будет найти подходящий кабель для нашей самоделки. Для Wi-Fi антенны, работающая в диапазоне 2,4 ГГц, нужно подыскать коаксиальный кабель сопротивлением 50Ом. Кабель сопротивлением 75Ом для этих целей не подходит. Также надо учитывать, что длина кабеля пропорционально потерям сигнала при прохождении через него. Соответственно, чем меньше будет длина кабеля, тем лучше. На длинном кабеле вы можете потерять несколько децибел сигнала.
В своей самодельной антенне сперва я подключил старый 5мм кабель длиной в 3 м. Но после испытаний я заказал кабель диаметром в 4 мм и длиной в 9 м. Также через интернет-магазин я заказал специальные коннекторы к нему. Это позволило удобно подключать антенну к Wi-Fi плате адаптера на компьютере. Как видно на фотографиях, экран коаксиального кабеля нужно запаять к рефлектору с внутренней стороны антенны.
Центральную часть кабеля нужно очистить с небольшим запасом и провести через отверстие во втором диске. Таким образом, после пайки лишнее отрезается с помощью кусачек.
Естественно, перед пайкой волновод (патч) нужно закрепить в стержне, то есть в шпильке антенны. Расстояние между ними, согласно чертежу, составляет 11мм. Второе отверстие в дисках используется для второго кабеля.
В процессе испытаний я подключил к компьютеру 2 антенны: эту с узким направлением и вторую с более широким углом. Антенна используется в закрытом помещении, поэтому дополнительного покрытия не требует. Если разместить её на улице, то в таком случае можно покрыть лаком или установить в соответствующем по размерам пластмассовом корпусе (герметичном). Высокочастотное оборудование всегда очень капризно, поэтому покрытие антенны краской нежелательно (она содержит металлические микрочастицы).
Подключение двух разных антенн позволило увеличить уровень сигнала для интернета. Единственная особенность направленной антенны заключается в том, что её нужно долго регулировать для наилучшего приёма и передачи сигнала. Как оказалось в тандеме, две антенны дополняют друг друга.
Это узконаправленная антенна, при правильной настройке, позволяет работать на расстоянии до нескольких километров. Я испытывал её на расстоянии нескольких сотен метров. Для других частот, например, для 4G - 2600 МГц нужно рассчитывать другие размеры деталей антенны с помощью онлайн калькуляторов. С помощью двух таких антенн можно соединиться на больших расстояниях для приёма-передачи интернета, например (телемост). Также она требует дополнительных регулировок для достижения наилучших результатов. Но, для моих нужд (на даче), на небольшие расстояния, она вполне себя оправдала.
Много всего интересного найдёте, если подпишитесь на: мой телеграм-канал
Креативности и полезных самоделок! С уважением, FLOMASTER.
Становитесь автором сайта, публикуйте собственные статьи, описания самоделок с оплатой за текст. Подробнее здесь.













































