Здравствуйте, самодельщики-танкисты! Хочу предложить вам свой вариант самого знаменитого советского танка, не побоюсь этого слова, легенды, Т-34. Достоинства этой модели заключаются в доступности всех материалов, простоте изготовления, и отличных ходовых качеств при этих условиях. Конечно, о копийности говорить можно чисто условно, но узнаваем он все равно с первого взгляда. Итак, нам понадобится:
Материалы
1. ПВХ пластик. Добывается из прямоугольной вентиляционной трубы
2. Жесть от банок с напитками
3. Жесть толщиной 0.3-0.5мм
4. Линолеум 2мм
5. ПВХ коврик для ванной
6. Крестики для керамической плитки
7. Велосипедные спицы
8. Два желтых китайских редуктора
9. Различный крепеж. В основном М3
10. Комплект аппаратуры. Какой именно, уточним позже.
Инструменты
1. Ножницы. Разные. В том числе по металлу
2. Линейка, карандаш или маркер для разметки
3. Шуруповерт с набором сверел
4. Напильники или надфили
5. Клеевой пистолет
6. Отвертки
7. Столярный нож
8. Плоскогубцы
Я сделаю упор на изготовление корпуса и ходовой, ибо управлять этим хозяйством без изменения конструкции можно любой аппаратурой. О ней мы поговорим в последнюю очередь. Начнем с корпуса.
Берем припасенную трубу и режем ее на листы.
На полученных листах размечаем детали корпуса по приведенным чертежам и аккуратно вырезаем ножницами по металлу.
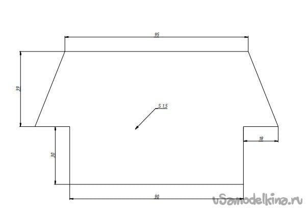
Верхний и нижний кормовые бронелисты
Верхний и нижний лобовой бронелист
Днище и крыша корпуса
Далее верхний и нижний бортовые листы и подкрылки
В итоге получаем такой набор корпуса:
Склеивать начинаем с верхних бронелистов. Сначала просто прихватываем их точечно в ключевых точках. Кромки подпиливать не нужно. Стыки будут заполнены клеем, что только улучшит прочность. Получаем эту картину:
Крышу сделаем съемную, для этого приклеим в нужных местах крепежные уголки из жести, с просверленными отверстиями под саморезы:
Ну и продолжаем клеить на свои места остальные детали, стараясь делать это без перекосов. Последним приклеивается нижний бронелист, но перед этим нужно поставить на свои места редукторы:

После полной сборки корпуса, проливаем все стыки и швы термоклеем. Излишки клея аккуратно срезаем ножом. Получается достаточно крепкий корпус.
Настала очередь ходовой. Начнем с опорных катков. Для них понадобится вырезать по 4 штуки пластиковых дисков, четыре из линолеума и три диска промежуточных. Для уменьшения трения катка на оси, только в крайних дисках сверлим отверстия 2 мм, в остальных 3мм. Для облегчения захода гребней в каток, на внутренних дисках стачиваем кромку. В качестве осей используем велосипедные спицы. Всего для опорных катков надо 40 пластиковых дисков, столько же линолеумных и 30 промежуточных. Та еще работенка! ) чертежи дисков вот:
Все детали катков склеиваем суперклеем. После высыхания напильником или наждачкой придаем ровность краям и удаляем огрехи. Получаем это:

И так десять раз! )
Таким же образом, с обточкой внутренних дисков, делаются направляющие колеса. С той разницей, что вместо линолеума будут стоять промежуточные диски. Чертежи:


На одно колесо понадобится 8 больших и 7 малых дисков. Чтобы катки не терлись о бортовые листы, на оси одеваем небольшие шайбы. Для того, чтобы катки не слетали с осей, на края одеваем кембрики подходящего диаметра и обрезаем лишнюю длину спицы.

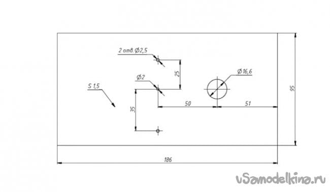
Далее ведущие колеса. Начнем с зубчатого венца. Вот его чертеж:
Центры отверстий по наружному диаметру размечаются циркулем и сверлятся до вырезания колеса. Естественно вместе с внутренними отверстиями. Далее аккуратно вырезать по разметке внешний край. Получим зубчатое колесо. Надфилем убрать заусенцы. В дополнение к ним вырезаем внутренние диски по чертежу:
Их количество будет зависеть от ширины гусеницы. Собирается вся конструкция на трех винтах. На дисках, обращенных к редуктору не забудьте сделать потай для головок винтов. Вместо промежуточных дисков будут гайки. Лишнюю длину винтов можно отпилить или откусить кусачками.

Ставим колеса на место:
Приступаем к гусеницам. Из ПВХ коврика для ванной отрезаем полоску нужной ширины.
Для гребней будем использовать крестики для укладки плитки
Отрезаем одну ножку и вставляем в гусеницу. На полиэтиленовом пакете проклеиваем суперклеем вставленный крестик:

Края гусеницы вполне можно клеить суперклеем встык, прочности данного стыка вполне достаточно.

Итак, собираем гусеницу, одеваем на катки и склеиваем края.
На данном этапе мы уже получили способную двигаться конструкцию. Но какой же танк без башни? Никакой! Поэтому приступаем к ней. И сделаем ее поворачивающейся и с подвижной пушкой. Приступим!
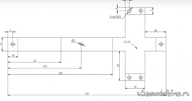
Начнем с изготовления скобы из жести по данному чертежу.
Вырезав и просверлив в нужных местах согнем ее так, чтобы получилось следующее:

На ось моторчика (130й серии) наденем маленький шкив. Сделаем ведомый шкив из пластика по чертежам:
В качестве оси используем все ту же спицу и привинчиваем винтами М3 к крышке изнутри. Да, и не забываем одеть пассик из резинки
Ведомый диск второй ступени делается из двух дисков из пластика
В качестве оси для этого шкива используем обрезанный шприц. Через нее к тому же будут проходить провода для механизма пушки.

Вставляем в крышу корпуса, одеваем резинку и механизм поворота башни готов. Если скорость поворота слишком большая, можно убрать с осей один или оба маленьких шкивов и одеть резинку прямо на оси.
Осталось только поставить крышку на место.
Осталась башня. Как и с корпусом, заготовим из пластика ее детали.
Маска пушки
Боковины
Задняя часть
Дно башни

И крыша башни
Дно башни приклеиваем к шкиву и вставляем ось из шприца через них.
Далее по той же технологии, что и корпус, склеиваем башню и ровняем стыки и края.

Из отрезка ПВХ трубы диаметром 32 мм делаем люльку пушки. По краям закрываем ее дисками из пластика и сверлим отверстия согласно чертежа.
Отверстие сбоку делается исходя из того, что будет использоваться в качестве ствола. Ставим ее на место, вставляем ось из спицы и соединяем тягой с сервоприводом, который в свою очередь крепим уголками из жести к дну башни.
В качестве ствола я использовал ручку со вставленным дешевым китайским лазером. Конечно, каждый волен тут проявить фантазию и поставить свой вариант.
Ну и устанавливаем башню на место.
На этом механическая часть нашего танка закончена. Осталось установить электронику и навесить внешние элементы, такие как баки, выхлопные трубы, запасные траки и прочее. Электроника в данной модели представляет собой самодельный блок CCU и блок драйверов на платформе Ардуино.
Как его изготовить, можно найти в соответствующем разделе по этой ссылке.
уроки ардуино Для питания используются два аккумулятора 18650 в специальном боксе. К которому подключен выключатель, расположенный на корме. Подключить все это хозяйство для тех, кто разбирается в ардуино, труда не составит.
Другой вариант-это купить и установить комплект дискретной аппаратуры, располагающей по меньшей мере восемью каналами. Например вот такой. аппаратура
Подключать ее даже проще чем ардуино. Там все понятно интуитивно.
Навес можно сделать из жести от банок, скрепив его суперклеем. Ну чтож, наш танк готов и может отправляться на ходовые испытания!
Вот как они прошли.
Данную модель при некоторой помощи и под мудрым руководством взрослого вполне осилит школьник среднего возраста. Удачи вам, если решите повторить!
Становитесь автором сайта, публикуйте собственные статьи, описания самоделок с оплатой за текст. Подробнее здесь.
















































