Если все материалы и инструменты под рукой, изготовить его можно за пару вечеров и порадовать ребенка замечательной игрушкой.
Итак, нам понадобится:
1. ПВХ труба прямоугольного сечения 60х200мм, продается в строительных магазинах
2. Листовая жесть толщиной 0.5 мм
3. Бусины диаметром 6мм с отверстием диаметром 2 мм
4. Дюбели диаметром 6мм
5. Винты разной длины и гайки М3
6. Гайки М6 длиной 15мм
7. Кольца резиновые сантехнические диаметром 60мм
8. Два желтых китайских редуктора
9. Велосипедные спицы диаметром 2мм
10. Сервопривод SG-90
11. Аппаратура Р/У
12. 4 авторучки
Из инструментов понадобятся шуруповерт, ножницы по металлу, ножовка, отвертки, нож, линейка, шило, сверла, надфиль.
Клей лучше использовать Космофен или клеевой пистолет.
Сразу оговоримся по аппаратуре. Я использовал платформу Ардуино, но можно установить дискретную из китайских машинок или пропорциональную типа FlySky FS GT3B. Если будет использоваться аппаратура из китайских машинок, то сервопривод придется переделать в обычный редуктор. Для этого надо его аккуратно вскрыть, вывинтив винты, удалить управляющую плату и припаять провода (черный и цветной) напрямую к моторчику. После чего собрать обратно.
Прежде чем заняться непосредственно краулером, нужно проверить себя на усидчивость и терпение, изготовив для него шаровые опоры. Они собственно и позволяют краулеру быть таковым. Понадобится их 26 штук. изготавливать их будем из ПВХ пластика и бусин. Пластик получаем, вырезав из трубы плоские участки. Он пригодится и на другие детали. Каждая из опор состоит из трех вот таких деталей:

Две такие по краям, а внутренняя должна иметь диаметр бусины. Скрепляются все три винтом М3.
Должно получиться так:
Края ровняем надфилем, чтоб получилось все ровно и красиво. И так 26 раз…) Точнее будет сказать, что нам понадобятся только боковые части, роль внутренних будут выполнять рычаги. И только для амортизаторов нужно будет изготовить четыре именно таких опоры. Фаски можно сделать сверлом большего диаметра.
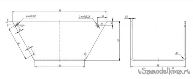
Осилили? Прекрасно! Едем дальше. Сделаем раму. Форма трубы такова, что позволяет выпилить раму из нее, не прибегая к процедурам изгиба. Нужно только нанести на боковины наш чертеж и с помощью ножовки и ножниц аккуратно вырезать его.

Вот чертеж:
В указанных местах сверлим отверстия под рычаги и амортизаторы.
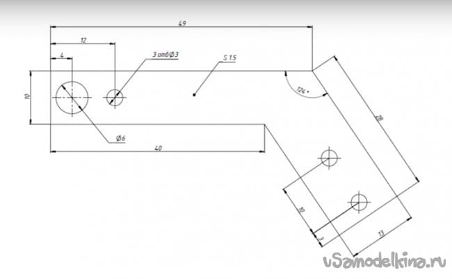
Далее нужно изготовить 4 кронштейна для амортизаторов. Изготавливаем их так же из ПВХ пластика по этим чертежам:
Верхняя пара отверстий служит средней пластиной для шаровых опор. Вырезаем, получаем:

Привинчиваем их к верхней части рамы винтами М3, вкручивая их в отверстия 2.5мм. При этом гайки можно не использовать, винт сам нарежет в пластике резьбу, при этом соединение получается достаточно прочным. Должно получиться так:
Дальше делаем верхние и нижние рычаги подвески. Используем все тот же ПВХ пластик, размечаем, сверлим, вырезаем. Вот чертеж для нижних рычагов:

Верхние рычаги должны быть несколько короче. Вот чертеж для них:

Получаем вот такие детали:

На концах рычагов должны быть шаровые опоры. Используя вырезанные ранее боковины, вставляем в крайние отверстия бусины, накрываем боковинами, скрепляем винтами М3. Получаем:

Подравниваем края и подпиливаем острые кромки надфилем.
Из велосипедной спицы отрезаем два куска длиной 57 и 70мм. Они будут служить осями для рычагов. Просовываем их в бусины рычагов и вставляем в заранее просверленные отверстия диаметром 2мм. Спицы должны плотно сидеть в отверстиях, в противном случае можно капнуть туда немного клея. Бусины сдвигаем поближе к корпусу. Они также не должны елозить по оси. Если это не так, можно сделать на оси небольшие засечки или же снова капнуть чуток клея.
Получаем такую картину:

К закрепленным рычагам нужно присоединить желтые китайские редукторы. В них есть отверстия, куда можно вставить оси рычагов. Проблема только в том, что они гораздо больше диаметром. Эта проблема решается вставкой трубок подходящего размера, или же можно просто залить их термоклеем. Получаем это:
Теперь займемся изготовлением мостов. Для переднего моста нужно разметить и вырезать две детали по этим чертежам:



Из жести по чертежу вырезаем и сгибаем ступицы:

Из этой же жести и кусочков велосипедной спицы делаем карданы. Для крестовины кардана можно использовать любой материал, который есть под рукой. Чертежи для кардана вот:


Сгибаем, в середине сажаем на винт М4, вставляем квадрат крестовины и забиваем шпильки из спицы. Получаем карданы:

Теперь эти карданы надо присоединить к редуктору. Для этого воспользуемся гайкой на М6 и дюбелем. От дюбеля отрежем вставки нужной длины, а в гайке просверлим два отверстия 2.5мм и нарежем в них резьбу М3. Они будут нужны для фиксации валов.
Закрепив таким образом карданы, четырьмя винтами М3 стягиваем заготовленные полосы вокруг редуктора. По краям прикладываем ступицы, вставив в них оси колес и закрепляем их винтами в качестве осей поворота. Гайки можно использовать с нейлоновыми вставками, чтобы они не раскручивались. Должно получиться так:

Важное замечание: вставку из дюбеля делаем такой длины, чтобы ось крестовины кардана совпадала с осями поворота ступиц. Это нужно для корректной работы карданов при поворотах.
Пришла очередь поворотного механизма. Вырезаем из ПВХ соединительную рейку:

Соединяем ей обе ступицы:

Сверху с помощью двух уголков из жести крепим сервопривод:

Из того же ПВХ вырезаем рулевую тягу и делаем на ее концах шаровые опоры по уже отработанной технологии:


Придаем ей винтовой изгиб на 90 градусов и крепим одним концом на правую ступицу вместе с соединительной пластиной, а другой конец крепим к качалке сервопривода:

Передний мост готов. Займемся задним. Для него понадобятся такие же пластины из ПВХ и в связи с отсутствием карданов немного другие детали из жести. Делаем их по этим чертежам:



По уже известному способу делаем вставки из дюбеля, вставляем в них длинные винты (карданов то нет) стягиваем пластины вокруг редуктора, по краям вставляем ступицы и дополнительные элементы жесткости. Все это будет выглядеть вот так:


Ну а чтобы наши мосты не болтались свободно, снабдим их амортизаторами. Делать их будем из авторучек и велоспицы. Подробное описание как их сделать есть в этом видео:
Один конец амортизатора крепим к кронштейну, а второй через шаровую опору к оси ступицы. Вот так:

Ну и последнее, что осталось сделать-это поставить наш краулер “на ноги”. То есть сделать ему колеса. В строительных магазинах продаются резиновые сантехнические шайбы диаметром 60мм с желобом внутри.
Воспользуемся ими в качестве покрышек. Диски вырежем из нашего любимого ПВХ по этим эскизам:



Покрышки довольно тонкие, поэтому сделаем колеса двойными, стянув их винтами:

Для лучшей проходимости ножовкой сделаем пропилы, получив этим самым импровизированный протектор. Прикручиваем колеса к осям и краулер практически готов!
Осталось снабдить его управляющей электроникой. Вопрос с ней обсуждался выше, поэтому ставим туда ту аппаратуру, которой располагаем.


В качестве аккумулятора наиболее подходит телефонный.
Можно приступать к испытаниям!
Испытания показали поразительную проходимость и гибкость подвесок. Для него почти не существовало препятствий! Сделайте такую игрушку ребенку и благодарности его не будет границ! Удачи!
   Становитесь автором сайта, публикуйте собственные статьи, описания самоделок с оплатой за текст. Подробнее здесь.
        
        


















                    
                    