Здравствуйте, друзья авиамоделисты!
Весна в полном разгаре, скоро лето и пора подумать о том, как будем проводить выходные дни в летние, погожие денёчки, чем будем заниматься, и на чём будем летать?
Лично я подобрал для себя очень интересную авиамодель и не долго думая создаю её, надеюсь, что успею построить к началу тёплых дней.
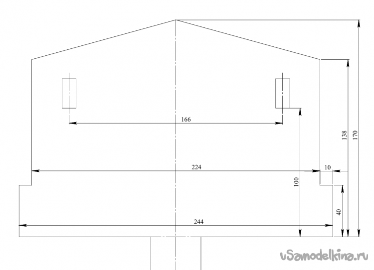
Где-то на Ютюбе раскопал несколько рисунков с размерами модели.
Переношу рисунок прямо на листы простой , листовой подложки под ламинат, которую решил использовать как основной материал для постройки модели.
Не обойдётся и без гладкой, белой потолочной плитки.
Клей применяю универсальный, полимерный «Русский Титан».
Несущую плоскость крыла , кили и элевоны вырезал из подложки. Все детали делаются в два слоя.
Склеил несущую плоскость и усилил её по ширине деревянной реечкой сечением 10 х 5 мм.
Оба слоя заготовок склеил.
Все вертикальные перегородки фюзеляжа вырезал из потолочки.
Вертикальные перегородки воздухозаборников изготовил их подложки.
Начал монтировать вертикальные перегородки воздухозаборников на нижней стороне крыла.
В нижней, носовой части фюзеляжа делается утолщение из нескольких слоёв подложки. Хотел было делать это утолщение из слоёв потолочной плитки,также как и вертикальные перегородки воздухозаборников, но соотношение веса не позволило это сделать. Вырезал всё из подложки.
После вклеивания всех слоёв подложки, придаю нужную форму.
Вот так смотрится крыло с воздухозаборниками.
Примеряю кили и элевоны.
В заключение делаю облицовку носовой части фюзеляжа белой потолочкой.
Монтирую боковые стенки носовой части фюзеляжа на верхней плоскости крыла.
Поплавок склеен из трех слоёв подложки. Примеряю готовый поплавок на стенки воздухозаборников.
Заканчиваю облицовку нижней носовой части фюзеляжа.
Вклеиваю носовую горизонтальную обшивку в носовой части фюзеляжа.
Вклеиваю кусочек утеплителя под место установки мотора.
Начинаю локальную обтяжку модели цветным скотчем.
Навешиваю элевоны на бумажный, малярный скотч.
Вклеиваю потолочку на кабину
Размечаю и монтирую сервомашинки и кабанчики
На место установки мотора вклеиваю кусочек фанеры толщиной 3 мм. и устанавливаю мотор.
Обтянул кабину чёрным скотчем.
Вот так смотрится готовая модель. Поплавок буду вклеивать после монтажа всей электроники.
Фотография специально для сайта «У Самоделкина».
Размеры модели и электроника.
Длина – 1160 мм.
Размах – 8200 мм.
Мотор – 2212 4500KV.
Винт – 6 х 4 Е.
Регулятор – 60 А.
Аккумулятор – 1,5 mAh.
Видео об этой модели.
Постройкой модели доволен. Желаю и вам успешной постройки такой модели и множество положительных эмоций от её полётов.
На этом прощаюсь, до свидания!
Ваш Валериан Самоделкин.
Становитесь автором сайта, публикуйте собственные статьи, описания самоделок с оплатой за текст. Подробнее здесь.



































































































